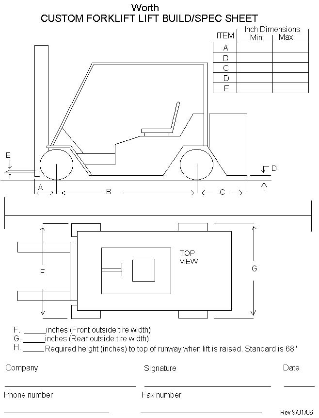
FORKLIFT 4 POST LIFT MADE EXPRESSLY FOR LIFTING FORK LIFT TRUCKS

 

  Back to Service Index  

Back to twin Post Lifts 

Back to Used lifts  

Click for Forklift 4 post Lift